欧创芯电源管理IC-关于减小输出纹波电压的办法
关于减小输出纹波电压办法
由于电路中存在电感,MOS,二极管等开关器件,同时PCB上的走线存在寄生电感,寄生电容等参数,在开关器件工作的同时,会在地平面或者输出的正端平面上产生一定的波动,这个就是我们常说的输出纹波电压。通常输出的纹波频率是和开关器件的频率保持一致,同时纹波电压是交流信号,输出纹波太大有很大的弊端,会导致器件寿命缩短或者导致器件损坏,所以在电源设计之初就要限定输出纹波电压在一定的范围内。如下是我们OC5800L案例分析减小纹波电压的办法。
一、办法和措施
1、优化PCB的布线,减小环路面积,减小PCB寄生参数
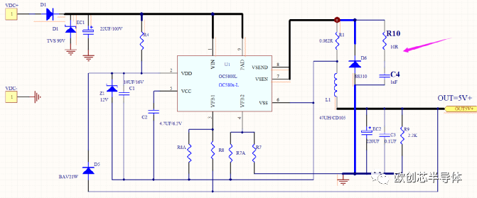
任何板子都会存在寄生参数,包括走线的寄生阻抗,走线的寄生电感,线与线之间的寄生电容效应,过孔的寄生电容和寄生电感等。所以在PCB走线开始之初要先进行元器件的布局,要根据开关电源的布线规则,尽可能减小功率环路的面积,OC5800L的功率环路走线包含两条通路。
MOS管导通环路为VDC+→VIN引脚→R1→L1→EC2→负载(黑色粗线),此环路为电感充能环路。
MOS管关闭环路为D6→L1→R1→负载(蓝色粗线),此环路为电感放电环路。
输入电容EC1尽可能靠近VIN脚,同时可在EC1上并联104瓷片电容,减小引入到芯片内部的纹波。
输出电容使用LOW ESR的电容,如用大容量的电解并联陶瓷电容(成本相对较低),或者使用钽电容并陶瓷电容(成本高),并且输出电容的容量越大,输出的纹波值也会越低。
开关节点网络的面积尽可能小,走线要粗,同时用地包络开关节点。
反馈VFB1,VFB2的四个采样电阻要和芯片在同一层,并且远离开关节点走线和开关器件。
肖特基二极管D6阳极要靠近输入电容的负极,同时D6的阴极要靠近芯片的7.8脚,并且尽可能不要走过孔。

图1:OC5800L电路图
2、电路中增加吸收RC吸收网络
如上已经提到寄生参数对输出纹波电压的影响,而肖特基二极管也存在寄生参数,并且在高频开关电流回路中,所以在二极管反向恢复期间,寄生电感和电容会形成LC振荡,产生高频振荡,继而产生尖峰毛刺电压,寄生参数越大,产生的尖峰电压会越高,并且在示波器上测试时可以测试到是和开关频率一致的,开关在导通和关断的瞬间会产生毛刺电压。为了减小这个尖峰毛刺纹波电压,可在外部二极管D6的对地并联RC网络,通常电阻R= 10欧,电容C≤1nF,图 2为添加RC吸收电路的电路图:

图2:OC5800L增加RC吸收电路
3、输出增加LC电路,组成LC滤波器
若需要进一步改善输出纹波的大小,可以采用LC滤波器,在输出端增加一级滤波电感和电容进行滤波,以达到输出纹波最优的效果,电感常规选择L1=22~33uH,EC3=100~220uF。

图3:OC5800L增加LC滤波电路
用OC5800L,输入60V,输出5V2A下,用不加LC和增加LC两种测试办法对比测量,其他参数条件不改变,增加L2,EC3滤波参数后的对比数据如下:

图4不加LC滤波纹波电压ΔVpp=104mV

图5加LC滤波纹波电压ΔVpp=40.8mV